湖西ときわ三丁目
浜松、豊橋へのアクセスも良好、
自然豊かで安心な住宅地。
価格 :3,650万円〜
所在地:湖西市ときわ三丁目1135-6 他
交通 :湖西市コミュニティバス「きずな館」停
【予告広告】レイクヒルズ鷲津
JR東海道本線「鷲津駅」徒歩7分、
50坪超えの広々敷地でゆとりの生活。
価格 :未定
所在地:湖西鷲津字小側名川1233-14他
交通 :JR東海道本線「鷲津」駅 徒歩7分
現在販売中の物件はございません。
土地探しからサポートさせていただきます。
お気軽にお問い合わせください。
レイクヒルズ鷲津
JR東海道本線「鷲津駅」徒歩7分、
約60坪の敷地で、理想の住まいを実現。
価格 :1,790万円
所在地:鷲津字小名川1221-15他
交通 :JR東海道本線「鷲津」駅 徒歩7分

[ 耐震等級3 ] 耐震等級3級は等級1の1.5倍の耐震性能。震度7クラスに耐え、倒壊リスクを大幅低減。地震保険料も50%割引です。

[ 長期優良住宅 ] 長く暮らせる高品質な「長期優良住宅」をご提案。税制優遇も受けられ、環境にも家計にも優しい住まいです。

[ 断熱性能 ZEH基準 ] ZEH住宅は高断熱で快適。冷暖房費を抑え、家計と環境に優しいエコなくらしを実現します。

[ 壁外断熱工法 ] 壁外断熱工法は、柱の外側を断熱材で覆うため、高気密・高断熱を実現。結露や劣化を防ぎ、家が長持ちします。

[ 高性能樹脂窓 ] 高性能樹脂窓は、熱の流出を約6割削減。快適で経済的な暮らしを実現します。

毎月定額の利用料を支払うだけで、発電した電気を自由に使うことができます。災害時にも日中電気を使えるため、ご家族の安全を守るための備えにもなります。

[ 点検・保証 ] サーラ住宅は50年保証と点検で安心を提供。業界屈指のアフターサービスで、大切な住まいを長期サポートします。
Contact
プライバシーポリシーをご確認ください
下記フォームに必要事項を入力ください。
0120-070-468
受付/営業時間:10:00~17:00
定休日:火曜日・水曜日
Company Profile

サーラ住宅は1969年に中部ガス企業グループの1社として創業。健康・快適・省エネのConceptを基に技術開発を推進し、地域の住環境の向上に貢献しています。 100年にわたり地域のエネルギー供給を支え、地域とともに成長してきたサーラグループ。 次の100年も信頼されるパートナーであり続ける企業を目指しています。

長期優良住宅とは、「長期にわたって安全かつ快適に住むことを目的とする。環境にも配慮された住宅」優れた耐震性や省エネルギー性などの基本性能に加え耐久性やメンテナンスのしやすさも重要な指標です。木造住宅としての認定取得率は2年連続※の全国1位を含めトップクラスを維持しています。(※2016〜2017年)

サーラ住宅では、お引渡し後もさまざまなご要望にきめ細かくお応えできるよう、アフターサービス専任部署を設置しています。加えて、「50年にわたる無償点検」と「最長50年の長期保証」をご用意。安心してご利用いただけるアフターサービス体制で、お客様の暮らしを支え続けます。
■販売価格/3,860万円(税込)
■建物面積/ 94.82㎡(28.68坪)
■土地面積/ 234.54㎡(70.94坪)
(路地部分64.85㎡含む)
■販売価格/3,790万円(税込)
■建物面積/ 94.83㎡(28.68坪)
■土地面積/225.77㎡(68.29坪)
(路地部分65.21㎡含む)
■販売価格/3,880万円(税込
■建物面積/ 92.75㎡(28.05坪)
■土地面積/ 127.82㎡(38.66坪)
■販売価格/3,880万円(税込)
■建物面積/ 93.17㎡(28.18坪)
■土地面積/ 126.29㎡(38.20坪)
物件概要
■サーラガーデン浜北駅物件全体概要●所在地/浜松市浜名区横須賀字西村1090-10他●交通/遠州鉄道「浜北」駅●総区画数/4区画●地目/宅地●用途地域/第一種住居地域●都市計画法/市街化区域●建ぺい率/60%●容積率/200%●今回販売戸数/4戸●土地面積/126.29㎡(38.20坪)~234.54㎡(70.94坪)●建物面積/92.75㎡(28.05坪)~94.83㎡(28.68坪)●販売価格/3,790万円~3,880万円●建築確認番号/第2025確認建築静建住ま06358号(2025年09月29日)(No.1)他●道路/公道南約5.0m(No.1・2の通路部分は互いに通行地役権が設定されます)●設備/電気(サーラeエナジー)、都市ガス(サーラE&L)、公共上下水道●構造/木造軸組工法●建物完成時期/2026年2月中旬予定●入居時期/2026年2月下旬以降予定●取引態様/売主●広告制作年月/2025年12月●広告有効期限/2026年1月末
■販売価格/4,350万円(税込)
■土地面積/145.34㎡(43.96坪)
■建物面積/ 98.55㎡(29.81坪)
■販売価格/4,080万円(税込)
■土地面積/147.64㎡(44.66坪)
■建物面積/ 99.18㎡(30.00坪)
物件概要
■サーラガーデン天龍川町物件全体概要●所在地/浜松市中央区天龍川町1023-1他●交通/遠鉄バス「薬師」停●総区画数/2区画●今回販売戸数/2戸●地目/宅地●用途地域/第1種住居地域●都市計画法/市街化区域●建ぺい率/60%●容積率/200%●道路/公道西約7.4m●設備/電気、都市ガス、公営上水道、公共下水道●取引態様/売主●土地面積/145.34㎡(43.96坪)~147.64㎡(44.66坪)●建物面積/98.55㎡(29.81坪)~99.18㎡(30.00坪)●販売価格/4,080万円~4,350万円●建築確認番号/第2025確認建築静建住ま04318号(2025年8月6日)(No.1)他●構造/木造軸組工法●建売完成時期/令和7年12月下旬予定●入居時期/令和7年12月下旬予定●広告制作年月/令和7年12月●広告有効期限/令和8年1月末
■販売価格/未定
■土地面積/145.01㎡(43.86坪)
■建物面積/ 97.94㎡(29.62坪)
■販売価格/未定
■土地面積/143.89㎡(43.52坪)
■建物面積/ 96.28㎡(29.12坪)
物件概要
■サーラガーデン本郷Ⅱ物件概要●所在地/静岡県浜松市中央区本郷町1338-9他●交通/遠鉄バス「本郷」停●総区画数/2区画●地目/宅地●用途地域/第2種中高層住居専用地域●都市計画法/市街化区域●建ぺい率/60%●容積率/200%●今回販売戸数/2戸●土地面積/143.89㎡(43.52坪)~145.01㎡(43.86坪)●建物面積/96.28㎡(29.12坪)~97.94㎡(29.62㎡)●販売価格/未定●販売開始/2026年1月末予定●建築確認番号/第2025確認建築静建住ま08306号(2025.11.12)●道路/公道南約8.0mアスファルト舗装●設備/電気(サーラeエナジー)、都市ガス(サーラE&L)、公共上下水道●構造/木造軸組工法●建物完成時期/2026年3月●入居時期/2026年3月以降●取引態様/売主●広告制作年月日/2025年12月●広告有効期限/2026年1月末
※本広告を行い取引を開始するまでは、契約または予約の申込みに一切応じられません。また申込みの順位の確保に関する措置は講じられません。予めご了承下さい。
№1
■販売価格/2,170万円(税込)
■土地面積/205.19㎡(62.06坪)
№2
■販売価格/1,998万円(税込)
■土地面積/208.28㎡(63.00坪)
物件概要
●所在地/浜松市中央区幸二丁目401-3他●交通/遠州鉄道「曳馬」駅1400m(徒歩18分)/遠州鉄道「幸南」バス停700m(徒歩9分)●総区画数/6区画(注文住宅用地2区画)●販売区画数/2区画●土地面積205.19㎡(62.06坪)~208.28㎡(63.00坪)●価格/№1・2,170万円、№2・1,998万円●地目/宅地●用途地域/第一種低層住居専用地域●その他の地域等/第2種風致地区●建ぺい率/40%●容積率/60%●道路幅員/南6m、西6m●設備/公営上水道、中部電力、都市ガス、公共下水道●取引態様/売主 サーラ住宅株式会社●建築条件付き●取引条件有効期限/2026年1月末日●広告作成年月日/2025年12月
№1
■販売価格/2,526万円(税込)
■土地面積/121.16㎡(36.65坪)
№2
■販売価格/2,528万円(税込)
■土地面積/121.23㎡(36.67坪)
№1
・ 建物面積 : 延床面積 110.00㎡ (33.27坪)
・ 建物価格 : 2,680万円 (税別)
※上記金額に外構、屋外給排水工事、その他諸経費は含まれません。
※プランは一例です。
№2
・ 建物面積 : 延床面積104.00㎡ (31.46坪)
・ 建物価格 : 2,610万円 (税別)
※上記金額に外構、屋外給排水工事、その他諸経費は含まれません。
※プランは一例です。
物件概要
●名称/サーラガーデン山手町●所在地/浜松市中央区山手町4872番7●JR東海道線浜松駅3000m(徒歩38分)●総区画数/2区画(注文住宅用地2区画)●販売区画数/2区画●土地面積121.16㎡(36.65坪)、121.23㎡(36.67坪)●格/25,260,000~25,280,000円●地目/宅地 ●用途地域/第一種中高層住居専用地域●建ぺ率/60%●容積率/200%●道路幅員/南西道路6m、南東道路4m●設備/公営上水道、中部電力、都市ガス、公共下水道●取引態様/売主 サーラ住宅株式会社●建築条件付き●取引条件有効期限/2026年1月末日●広告作成年月日/2025年12月
№1
■販売価格/1,780万円(税込)
■土地面積/167.51㎡(50.67坪)
№2
■販売価格/1,710万円(税込)
■土地面積/161.05㎡(48.71坪)
物件概要
●名称/サーラガーデン高塚駅東●所在地/浜松市中央区増楽町1-1、1-6●JR東海道線高塚駅700m(徒歩9分)●総区画数/2区画(注文住宅用地2区画)●販売区画数/2区画●土地面積161.05㎡(48.71坪)、167.51㎡(50.67坪)●価格/1,710万円、1,780万円●地目/宅地 ●用途地域/第一種住居地域●建ぺい率/60% ●容積率/200% ●道路幅員/南面道路5.5m●設備/公営上水道、中部電力、都市ガス、公共下水道●取引態様/売主 サーラ住宅株式会社●建築条件付き●取引条件有効期限/2026年1月末日●広告作成年月日/2025年12月
№1
■販売価格/1,990万円
■土地面積/193.95㎡(58.66坪)
№2
■販売価格/2,130万円
■土地面積/194.35㎡(58.79坪)
物件概要
●名称/サーラガーデン有玉台4丁目552番79●所在地/浜松市中央区有玉台四丁目552番79●遠鉄バス「旭ヶ丘」停495m(徒歩7分)●総区画数/2区画●販売区画数/2区画●土地面積/193.95㎡(58.66坪)、194.35㎡(58.79坪)●価格/1,990万円・2,130万円●地目/宅地 ●用途地域/第一種中高層住居専用地域●建ぺい率/60%●容積率/200% ●道路幅員/東面道路6.2m、南面道路4.5m●設備/公営上水道、中部電力、都市ガス、公共下水道●取引態様/売主 サーラ住宅株式会社●建築条件付き●取引条件有効期限/2026年1月末日●広告作成年月日/2025年12月
■販売価格/3,899万円(税込)
■土地面積/171.93㎡(52.00坪)
■建物面積/ 97.73㎡(29.56坪)
物件概要
サーラガーデン見付 物件概要●所在地/磐田市見付1499-1他●交通/秋葉バスサービス「つつじ公園・北高入口」停徒歩3分●総区画数/3区画●地目/宅地●用途地域/第一種中高層住居専用地域●建ぺい率/60%●容積率/150%●都市計画区域/市街化区域●土地面積/171.93㎡(52.00坪)●建物面積/97.73㎡(29.56坪)●構造/木造軸組工法2階建●建築確認番号/[No.3]確認サービス第KS124-0410-55277号(2024.5.9)他●価格/3,899万円●建物完成/2024年11月下旬●入居時期/即入居可●道路/公道東約6.0mアスファルト舗装●設備/電気(サーラeエナジー)、都市ガス(サーラE&L)、公共上下水道●取引態様/売主●広告制作年月/2026年1月●広告有効期限/2026年2月末日
№1
■販売価格/1,873万円(税込)
■土地面積/220.36㎡(66.65坪)
№2
■販売価格/1,845万円(税込)
■土地面積/213.97㎡(64.72坪)
№3
■販売価格/1,817万円(税込)
■土地面積/211.61㎡(64.01坪)
№4
■販売価格/1,747万円(税込)
■土地面積/209.27㎡(63.30坪)
№2
・ 建物面積 : 110.25㎡ (33.25坪)
・ 建物価格 : 2,650万円 (税別)
※上記金額に外構、屋外給排水工事、その他諸経費は含まれません。
※プランは一例です。
物件概要
№1
■販売価格/1,410万円(税込)
■土地面積/315.85㎡(95.54坪)
有効面積/241.92㎡(73.18坪)
物件概要
●名称/サーラガーデン豊田西之島●所在地/磐田市豊田西之島507●JR東海道線豊田町駅1,514m(徒歩19分)●総区画数/2区画(注文住宅用地2区画)●販売区画数/1区画●土地面積315.85㎡(有効土地面積241.92㎡)、95.54坪(有効坪数73.18坪)●価格/1,410万円●地目/宅地 ●都市計画区域/市街化調整区域●用途地域/指定なし●建ぺい率/60%●容積率/200% ●道路幅員/北7.7m●設備/公営上水道、中部電力、LPガス、公共下水道●取引態様/売主 サーラ住宅株式会社●建築条件付き●取引条件有効期限/2026年1月末日●広告作成年月日/2025年12月
№1
■販売価格/1,350万円(税込)
■土地面積/165.25㎡(49.98坪)
№1
・ 建物面積 : 100.00㎡ (30.25坪)
・ 建物価格 : 2,450万円 (税別)
※上記金額に外構、屋外給排水工事、その他諸経費は含まれません。
※プランは一例です。
物件概要
●所在地/磐田市二之宮406-2●JR東海道線磐田駅910m(徒歩12分)●総区画数/10区画(注文住宅用地2区画)●販売区画数/1区画●土地面積165.25㎡(49.98坪)●価格/1,350万円●地目/宅地●用途地域/第一種住居地域●建ぺい率/60%●容積率/200%●道路幅員/北6m●設備/公営上水道、中部電力、都市ガス、公共下水道●取引態様/売主 サーラ住宅株式会社●建築条件付き●取引条件有効期限/2026年1月末日●広告作成年月日/2025年12月
№1
■販売価格/830万円(税込)
■土地面積/190.15㎡(57.52坪)
№2
■販売価格/950万円(税込)
■土地面積/190.13㎡(57.51坪)
№7
・ 建物面積 : 90.25㎡ (27.30坪)
・ 建物価格 : 2,375万円 (税別)
※上記金額に外構、屋外給排水工事、その他諸経費は含まれません。
※プランは一例です。
物件概要
●所在地/磐田市東新町2丁目161番160他●交通/JR東海道御厨駅1900m(徒歩24分・車5分)●総区画数/10区画(注文住宅用地4区画)●販売区画数/2区画●土地面積190.13~190.15㎡(57.51~57.52坪)●価格/№1・830万円、№7・950万円●地目/宅地 ●用途地域/指定のない地域●都市計画/市街化調整区域●東新町地区計画あり/A地区「戸建て住宅地区」●建ぺい率/50% ●容積率/80%●道路幅員/南7.3m・北7.8m・西6.0m●設備/公営上水道、中部電力、都市ガス、公共下水道●取引態様/売主・サーラ住宅株式会社●広告作成年月日/2025年12月●取引条件有効期限/2026年1月末日
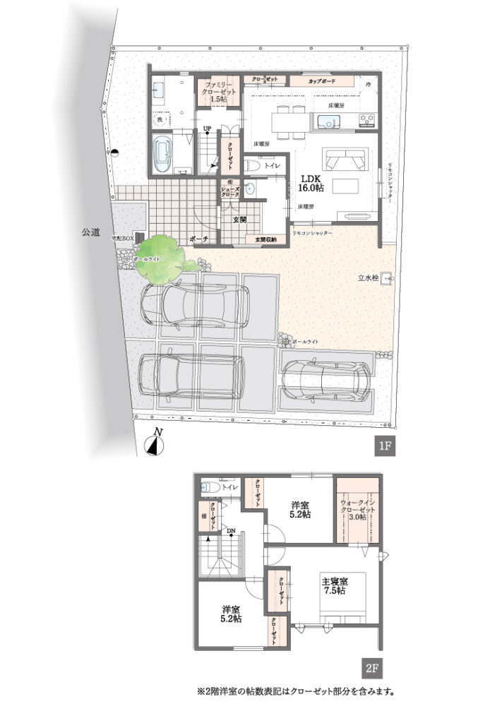
■販売価格/3,650万円(税込)
■土地面積/118.52㎡(35.85坪)
■建物面積/ 90.89㎡(27.49坪)
■販売価格/3,698万円(税込)
■土地面積/115,04㎡(34.79坪)
■建物面積/ 90,07㎡(27.24坪)
物件概要
■サーラガーデン湖西ときわ三丁目Ⅱ物件全体概要●所在地/湖西市ときわ三丁目1135-6他●交通/湖西市コミュニティバス「きずな館」停●総区画数/2区画●今回販売戸数/2戸●販売価格/3,650万円~3,698万円●土地面積/115.04㎡(34.79坪)~118.52㎡(35.85坪)●建物面積/90.07㎡(27.24坪)~90.89㎡(27.49坪)●地目/宅地●用途地域/第一種低層住居専用地域・第一種住居地域●都市計画法/市街化区域●建ぺい率/(No.1)50%、(No.2)57.93%●容積率/(No.1)80%、(No.2)175.22%●構造/木造軸組工法●建築確認番号/第2025確認建築静建住ま05295号(令和7年9月2日)(No.1)他●道路/公道東約6.0m●設備/電気、LPガス、公営上水道、合併浄化槽●取引態様/売主●建物完成/令和8年1月中旬予定●入居時期/令和8年1月下旬以降予定●広告制作年月/令和7年12月●広告有効期限/令和8年1月末※販売予定時期:2026月1月末:本広告を行い取引を開始するまでは、契約または予約の申込みに一切応じられません。また申込みの順位の確保に関する措置は講じられません。予めご了承下さい。
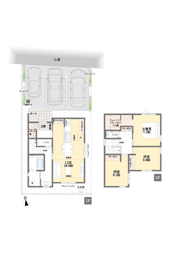
■販売価格/未定
■土地面積/116.23㎡(35.15坪)
■建物面積/ 91.93㎡(27.80坪)
■販売価格/未定
■土地面積/117.22㎡(34.45坪)
■建物面積/ 91.10㎡(27.55坪)
物件概要
■サーラガーデン新所原駅南物件全体概要●所在地/湖西市駅南一丁目1024-102他●交通/湖西市コミュニティバス「西部地域センター」停●総区画数/2区画●今回販売戸数/2戸●販売価格/未定●土地面積/116.23㎡(35.15坪)〜117.22㎡(35.45坪)●建物面積/91.10㎡(27.55坪)〜91.93㎡(27.80坪)●地目/宅地●用途地域/第一種住居地域●都市計画法/市街化区域●建ぺい率/60%●容積率/200%●構造/木造軸組工法●建築確認番号/確認サービス第第2025確認建築静建住ま09142号(2025年12月02日)(No.1)他●道路/公道北約9.0m、東約6.0m●設備/電気、都市ガス、合併浄化槽●取引態様/売主●建物完成/令和8年4月下旬予定●入居時期/令和8年4月下旬予定●広告制作年月/令和7年12月●広告有効期限/令和8年1月末※販売予定時期:2026月1月末:本広告を行い取引を開始するまでは、契約または予約の申込みに一切応じられません。また申込みの順位の確保に関する措置は講じられません。予めご了承下さい。
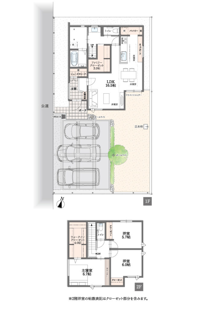
■販売価格/未定
■土地面積/189.57㎡(57.34坪)
■建物面積/102.28㎡(30.93坪)
■販売価格/未定
■土地面積/182.61㎡(55.23坪)
■建物面積/100.42㎡(30.37坪)
物件概要
■レイクヒルズ鷲津物件全体概要●所在地/湖西市鷲津字小名川1233-14他●交通/JR 東海道本線「鴛津」駅徒歩約7分●総区画数/22区画(内、サーラ住宅持分10区画)●今回販売戸数2戸● 土地面積/182.61m2(55.23坪)~189.57m2(57.34坪)● 建物面積/100.30㎡(30.34坪) ・102,28㎡(30,93坪) ●価格/未定● 地目/宅地● 用途地域/第一種住居地域、第二種住居地域●建築確認番号/[No.12]確認サービス第 KSKS125-0420-57617号(2025年10月10)他●構造/木造軸組工法2階建●道路/公道北約6.0mアスファルト舗装●設備/ 電気(サーラEエナジー)、都市ガス(サーラE&L)、公営卜水道、公共下水道●建物完成/2026年2月予定●引渡可能時期/2026年3月引渡し予定●取引態様/売主●広告制作年月/令和7年12月●広告有効期限/令和8年1月末2026年1月上旬(予定)※販売予定時期:2026月1月末:本広告を行い取引を開始するまでは、契約または予約の申込みに一切応じられません。また申込みの順位の確保に関する措置は講じられません。予めご了承下さい。
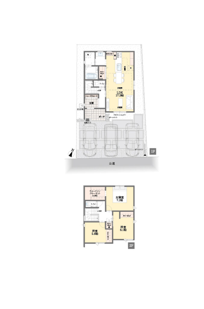
№9
■販売価格/1,790万円
■土地面積/197.65m2(59.78坪)
物件概要
■レイクヒルズ鷲津物件全体概要●所在地/鷲津字小名川1221-15他●交通/JR 東海道本線「鴛津」駅徒歩約7 分●総区画数/22区画(内、サーラ住宅持分10区画)●今回販売戸数1区画● 土地面積/197.65m2(59.78坪)●価格/1,790万円● 地目/宅地● 用途地域/第一種住居地域●建ぺい率・容積率/60%・200%●開発許可番号/湖都計第R5-3号 令和6年1月19日●構造/木造軸組工法2階建●道路/公道南約6m 、北約6mアスファルト舗装●設備/電気、都市ガス、公営上水道、公共下水道●引渡可能時期/相談●取引態様/売主●広告制作年月/令和7年12月●広告有効期限/令和8年1月末